24×32 Pavilion Pole Building
with Enclosed Storage Area
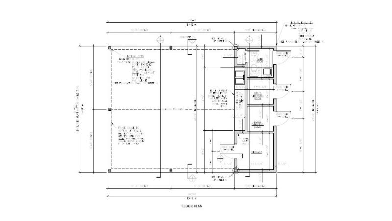
This 24×32 pavilion pole building combines an open covered gathering space with an enclosed section, creating a practical layout for outdoor use and property support.
Built with durable post-frame construction, this design provides a functional structure for shelter, storage, and changing areas, making it ideal for lakefront properties and recreational spaces.
Personalize this design in 3D
Fill out the form for pricing
Pavilion Pole Building Specifications
618
24’ x 32’ x 8’
768 Sq. Ft.
Pavilion Area
- Open covered pavilion for seating and gathering
- Concrete floor with reinforced slab (5″ thick, 4,000 PSI)
- Scissor truss system for open interior space
Enclosed Section
- Framed enclosed area for storage or utility use
- Interior liner finish (PVC Truss-Core)
- 2×4 interior framing at 16″ O.C.
- Block foundation at enclosed portion
Doors
- 4 – 2868 Solid Six-Panel Outswing Entry Doors with vinyl jambs and brickmold
Exterior Features
- 12″ Eave and Gable Overhangs
- 5″ K-Style Seamless Gutters with Downspouts
- Vinyl Dutch Lap siding with shake gable accents
- Encased Perma-Columns, posts, and carriers with AZEK PVC
Structure & Materials
- Post-frame construction with 3-ply 2×6 glulam posts
- Flat bottom trusses (enclosed area)
- Scissor trusses (pavilion area)
- 5/8″ roof sheathing with synthetic felt underlayment
- Textured standing seam metal roofing
Interior & Floor System
- 5″ reinforced concrete slab (4,000 PSI)
- Sloped floor with integrated drains
- Designed for easy wash-down and maintenance
Color Scheme
- Walls: Harbor Gray
- Roof: Charcoal Standing Seam
- Trim: White
Ideal Use for This Pavilion Pole Building
This configuration works well for:
- Lakefront and pond properties
- Outdoor gathering and recreation spaces
- Poolside or backyard pavilion setups
- Properties needing covered space with enclosed storage
- Multi-purpose residential outdoor structures
Need Help Taking the Next Step?
Whether you’re comparing financing options, planning your project, or looking for expert guidance, these resources can help you move forward with confidence.
Financial Options
Flexible financing options are available for qualified projects. Explore payment solutions designed to help you move forward with confidence.
Explore Financing →
Planning & Preparation
From site prep to permits and layout planning, our Planning Guide helps you understand the important steps before construction begins.
View Planning Guide →
Talk to Our Team
Need help deciding what works best for your property? Our team is here to answer questions and help guide your project.
Call Now (570) 682-8605 →
Discover More Pavilion Pole Buildings
Looking for more pavilion pole building ideas? Explore additional pole barn layouts and custom post-frame designs built for outdoor living, gatherings, storage, and more.
What Our Customers are Saying
Thousands of Pennsylvania homeowners and farmers have trusted Timberline for over two decades. Let us show you why.





